Laue Simonsens Vej 30, 6000 Kolding

4-vær. rækkehus

icon
Rækkehus
icon
93 m2
icon
4 værelser
icon
01.07.26

Ved Vonsild Bakke i Kolding er vi glade for at præsentere et nyt, stort boligprojekt med 143 rækkehuse i ét plan i varierende størrelser. Med 2-5 værelser bliver der plads til både enlige, par, familier og seniorer, og alle rækkehuse er udstyret med et lækkert køkken-alrum.

Udenfor er der tilhørende privat have og terrasse til alle boliger, og nogle rækkehuse har ligeledes privat parkeringsplads, imens andre får adgang til fælles parkering i nærheden af boligen. Alle boliger får desuden et skur, og nogle boliger har også et lille depotrum i boligen.

Hårde hvidevarer
Du får alt i hårde hvidevarer, herunder også opvaskemaskine, vaskemaskine og tørretumbler. Der er gulvvarme i hele boligen.

OBS: Samtlige køkkenlåger på Laue Simonsens Vej er hvide, og IKKE lyst træ, som billederne viser.

Husdyr
Det er tilladt at holde husdyr.*

*Der skal altid udarbejdes en husdyrserklæring til det pågældende husdyr. Kontakt os for mere info, hvis du ønsker at holde husdyr i din bolig.

Parkering
Fri parkering på privat plads eller fælles pladser.

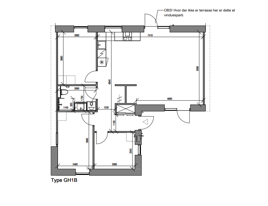
OBS: Vi tager forbehold for eventuelle ændringer i byggeprocessen. Vi gør desuden opmærksom på, at plantegningerne er vejledende ift. målene.

Læs mere om boligen

De viste billeder kan være fra et andet men tilsvarende lejemål i samme ejendom. Mindre afvigelser kan derfor forekomme.

I dette lejemål er der


icon Delvist tilladt

Økonomi

Månedlig husleje
10.825 kr.
Månedlig aconto
Afregnes direkte
Forudbetalt husleje
0 kr.
Depositum
32.475 kr.
Indflytningspris Indflytningsprisen dækker over det samlede beløb for første måneds husleje, depositum og forudbetalt leje.
43.300 kr.

Læs mere om boligstøtte på Borger.dk

illustration

Betal dit indskud med Keyhole

Med Keyhole kan du bruge dine penge på det, som er vigtigt for dig.

10.825 kr.

Husleje ekskl. aconto

Ledig fra
01. juli 2026
Tilmeld åbent hus Book fremvisning Bestil lejekontrakt

Beregn din boligstøtte

Vi tager forbehold for fejl og anbefaler, at du også beregner din boligstøtte på borger.dk.

Er du pensionist?
This is a hint text to help user.
Husstandens samlede indkomst
This is a hint text to help user.
Husstandens samlede formue
This is a hint text to help user.
Beregn din boligstøtte
profile

Frederik Andresen

Udlejningskonsulent, Jylland & Fyn

+45 3038 6677fan@gobolig.dk

Opvask på køkkenbord i ledig lejebolig

Åbent hus

Vi holder løbende åbent hus i vores boliger. Du kan booke en ledig tid nedenfor, hvis vi holder åbent hus på ejendommen.

Du er altid velkommen til at kontakte os eller anmode om at blive ringet op af en af vores udlejningskonsulenter, hvis du har spørgsmål, vil leje en bolig eller se et lejemål.

OBS: Det er vigtigt, at du tilmelder dig på forhånd, så vi ved, hvor mange der møder op

Åbent hus i ejendommen

Tor 30 apr. kl. 10.00-11.00
Tor 30 apr. kl. 11.00-12.00
Tor 30 apr. kl. 11.00-11.30
Tor 30 apr. kl. 11.30-12.00
Tor 30 apr. kl. 12.00-13.00
Tor 30 apr. kl. 12.00-12.30
Tor 30 apr. kl. 12.30-13.00
Tor 30 apr. kl. 13.00-14.00
Tor 30 apr. kl. 13.00-13.30
Tor 30 apr. kl. 13.30-14.00
Tor 30 apr. kl. 14.00-14.30
Tor 07 maj kl. 11.00-11.30
Tor 07 maj kl. 11.30-12.00
Tor 07 maj kl. 12.00-12.30
Tor 07 maj kl. 12.30-13.00
Tor 07 maj kl. 13.00-13.30
Tor 07 maj kl. 13.30-14.00
Tor 07 maj kl. 14.00-14.30

Åbent hus

Tak for din tilmelding til åbent hus. Vi har sendt dig en mail med alle informationer.

Noget gik desværre galt - prøv igen eller kontakt os på telefonen.

Ledige boliger i ejendommen

Ledige boliger i ejendommen

Måske disse lejeboliger kunne have interesse

Øv, vi fandt ingen resultater

Opret en boligagent og få direkte besked, når nye lejemål der matcher dine behov bliver ledige.

Øv, vi fandt ingen resultater

Opret en boligagent og få direkte besked, når nye lejemål der matcher dine behov bliver ledige.

{{item.label}}

Øv, vi fandt ingen resultater

Opret en boligagent og få direkte besked, når nye lejemål der matcher dine behov bliver ledige.

Viser alle {{apartments.length}} ledige boliger

Åbent hus!
d. 14/10

{{ item.title.title }}

{{ item.address.title }}

63 m2 2 vær. 01.07.2023

Leje ekskl. aconto pr. md7.200 kr.

Din boligstøtteBeregn din boligstøtte

Soveværelse i Agerbækshave Risskov

Rækkehuse for alle i roligt og naturskønt område i Kolding

Rækkehusene i Kolding ligger placeret i grønne omgivelser i den sydlige del af byen. Boligerne varierer i størrelse, og hermed bliver der plads til både seniorer, enlige, par samt mindre og større familier.

  • 500 meter til busstoppested
  • 450 meter til daginstitution
  • 1,5 km til SuperBrugsen
  • 5 km til Kolding Station

På Vonsild Bakke får du altså alle hverdagens fornødenheder inden for kort afstand på enten gåben, cykel eller i bil. Pendler du til nogle af de større byer, Fyn, eller Sydjylland, er det nemt at komme frem og tilbage, hvad end du er i bil eller med offentlig transport.

Få svar på dine spørgsmål

Hvordan fungerer vores åbent hus-arrangementer?

Når du tilmelder dig et af vores åbent hus-arrangementer vil du typisk blive budt velkommen af en af vores udlejningskonsulenter. Konsulenten vil herefter vise dig rundt i boligen og du får mulighed for at udforske forskellige rum og områder i boligen og på ejendommen.

Under arrangementet vil du sandsynligvis få mulighed for at møde andre interesserede lejere eller kommende naboer, hvilket kan give dig en bedre fornemmelse af lokalsamfundet.

Efter åbent hus-arrangementet kan udlejningskonsulenten følge op med dig for at høre, om du har yderligere spørgsmål eller er interesseret i at fortsætte processen med at leje en bolig.

Hvad er forudbetalt leje?

Udlejer har mulighed for at kræve op til 3 måneders forudbetalt leje. Den forudbetalte husleje stiller sikkerhed for, at udlejeren modtager betaling af husleje i opsigelsesperioden, der maksimalt er 3 måneder. Det er altså en betaling for huslejen i de sidste måneder af din lejeperiode, i den periode skal du ikke betale husleje.

Hvorfor betaler man depositum?

Udlejer kan kræve et depositum på op til 3 måneders husleje. Depositummet er vores sikkerhed for, at der er penge til reparationer og malerarbejde, når du fraflytter. Udlejer fratrækker det beløb, der er blevet brugt til renovering fra depositummet, hvis istandsættelsen overstiger det indbetalte depositum, kan udlejer stadig opkræve det resterende beløb fra dig.  

Hvordan modtager jeg detaljer om min indflytning?

Når din lejekontrakt er underskrevet, vil du modtage et velkomstbrev via e-mail med alle de nødvendige praktiske oplysninger, som du skal kende, når du flytter ind.

Hvad skal jeg gøre, hvis der er fejl og mangler ved indflytning?

Det afhænger lidt af, hvilken type fejl du opdager. Hvis det handler om nedsat funktion af en installation i lejemålet, skal du henvende dig igennem lejerportalen, så vi kan få det løst hurtigst muligt. Et eksempel på det kan være et løbende toilet.

Hvis du har fejl og mangler af kosmetisk karakter som eksempelvis ridser, hakker eller mærker, kan du skrive disse ting på din fejl og mangelliste. Det har du 14 dage til at indberette. I forbindelse med indflytningssynet bliver der genereret en mail med et link, hvor du kan udfylde mangellisten. Hvis det skal udbedres, sørger Go’Bolig for det ellers bliver det gemt til den dag, du flytter ud.

Har du spørgsmål til denne lejebolig?

Du er altid velkommen til at skrive til vores udlejningskonsulent.

illustration

Frederik Andresen

Udlejningskonsulent, Jylland & Fyn